Medical Centre






Parking and Accessibility: The Keys to Council Approval
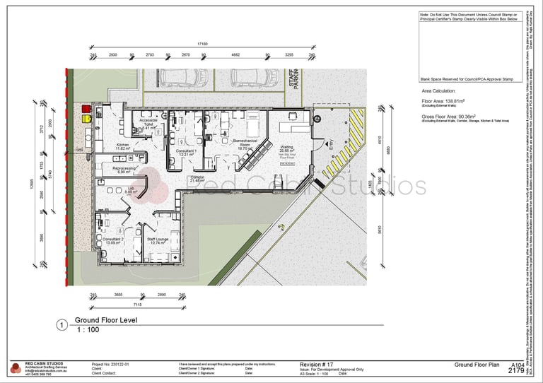
Parking and accessibility are two of the most scrutinized aspects of medical centre approvals:
Parking Layouts: Dedicated spaces for patients and staff, including accessible parking close to entrances.
Mobility Access: Compliant ramps, handrails, and wide pathways for wheelchair and ambulant accessibility.
Efficient Traffic Flow: Managing ingress and egress points to minimize congestion and ensure safety.
Additional Compliance Essentials
Beyond parking and accessibility, several other factors play a vital role in securing council approval:
Stormwater Management: Developing sustainable drainage systems to handle site runoff efficiently.
Landscaping Requirements: Enhancing aesthetics while meeting council’s visual amenity expectations.
Acoustic Design: Managing noise through insulation and soundproofing to maintain a peaceful environment.
Signage Standards: Ensuring all signs comply with council rules for size, placement, and lighting.
Simplifying the DA Approval Process
Our team handles the complexities of the DA approval process so you can focus on your project. Here’s what we do:
Property Assessment: Identifying site-specific challenges and solutions for parking, stormwater, and accessibility.
Detailed Drafting: Preparing comprehensive plans that address all council requirements.
Submission and Follow-Up: Managing all council communications to ensure a smooth approval process.
Post-Approval Support: Providing additional documentation or revisions if needed.
Convert Your Existing Home into a Medical Centre
Transforming a home into a medical centre is a smart way to meet the growing demand for health care facilities, but it requires meticulous attention to council regulations. At Red Cabin Studios, we provide expert drafting services to simplify the DA approval process, focusing on parking compliance, accessibility, stormwater management, and more.


The Complexities of Home-to-Medical Centre Conversions
Adapting a residential property for medical use requires addressing a variety of critical factors:
Parking Compliance: Meeting council-mandated parking ratios for staff, patients, and visitors, along with traffic management solutions.
Accessibility Standards: Ensuring wheelchair and ambulant access features such as ramps, compliant doorways, and bathrooms meet Australian Standards (AS1428).
Stormwater Management: Designing drainage solutions that adhere to council and environmental requirements.
Australian Health Facility Guidelines: Aligning the property with Health Facility Guidelines to meet national standards.
Landscaping and Noise Mitigation: Incorporating council-approved landscaping and acoustic treatments to ensure community compatibility.
Signage Compliance: Creating professional and regulation-compliant signage for visibility and approval.
Our expert team ensures these elements are seamlessly integrated into your DA plans, streamlining your path to approval.
Why Red Cabin Studios?
We specialize in turning residential properties into compliant medical centres by providing:
Custom DA Plans: Tailored to meet local council and health facility standards.
Expert Parking Solutions: Designing layouts that maximize space and meet strict parking ratios.
Full-Service Support: From drafting to approval, we’re with you every step of the way.
Get Started on Your Medical Centre Conversion Today
Let Red Cabin Studios help you navigate the complexities of DA approval with confidence. Contact us today to begin your journey toward transforming your property into a fully compliant medical centre.
