Dog Grooming
Comprehensive Dog Grooming Drafting Services
Setting up a dog grooming facility involves several key considerations to secure smooth DA approval:
Functional Layouts
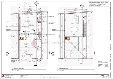
Optimized Workflow: Drafting plans that maximize space for grooming stations, washing areas, and drying zones.
Client-Friendly Spaces: Including reception and waiting areas designed for comfort and functionality.
Plumbing and Waste Management
Plumbing Compliance: Ensuring all wash stations, drainage, and plumbing systems meet Sydney Water approval requirements.
Waste Disposal: Incorporating effective waste management systems to handle grooming by-products in an environmentally friendly manner.
Ventilation and Hygiene
Proper Ventilation: Drafting plans that include mechanical ventilation systems to maintain air quality and control odors.
Hygiene Standards: Designing spaces with durable, easy-to-clean materials to meet council and health regulations.
Parking and Zoning Compliance
Parking Facilities: Allocating sufficient parking for clients and staff, including accessible spaces as required.
Zoning Regulations: Ensuring the facility aligns with local zoning laws for smooth approval.






Simplifying the DA Approval Process
Securing DA approval for a dog grooming business can be complex, but we simplify the process:
Initial Consultation
Understanding your vision and evaluating the space for zoning and compliance challenges.Tailored Drafting Services
Preparing detailed DA plans that address layout, plumbing, ventilation, and waste management requirements.Council Submission
Managing all necessary documentation and liaising with council representatives to ensure a smooth approval process.Post-Approval Support
Assisting with revisions or additional submissions to finalize the approval.
Why Choose Red Cabin Studios?
Specialized Drafting Services: Tailored DA plans for dog grooming businesses to meet all council requirements.
Plumbing and Waste Expertise: Ensuring compliance with Sydney Water and environmental standards.
Efficient Approval Process: Expertise in navigating Sydney’s planning regulations to secure timely DA approval.
Pet-Centered Approach: Designing functional, hygienic spaces that prioritize comfort for pets and their owners.
Dog Grooming DA Approval Drafting Services
Creating a professional and pet-friendly dog grooming facility requires precise drafting to meet council DA approval requirements. At Red Cabin Studios, we specialize in tailored DA plans for dog grooming businesses, ensuring compliance with Sydney’s regulations. From functional layouts to waste management and ventilation, we help you design a space that’s hygienic, efficient, and welcoming for pets and their owners.


Start Your Dog Grooming Business Today
Let Red Cabin Studios help you create a compliant and functional dog grooming facility. Contact us today to discuss your project and secure your council DA approval in Sydney with confidence.
